Immobilien-Angebote (Kaufen)
Mehrfamilienhaus mit fünf 3-Zimmer-Eigentumswohnungen
Ort
Burgkunstadt
Objekt
MS 2020.01-3
Immobilientyp
Eigentumswohnung
Baujahr
2020
Fläche
ca. 69-116
Grundfläche
-
Anzahl Zimmer
3
Zustand
Neubau
Heizung
Fußbodenheizung
Bezug
2022
Preis
ab 216.225,00
Provision
3,57% inkl. MWSt.
Teilen...
Hier wird Ihre Traumwohnung in massiv- und ökologischer Bauweise gebaut.
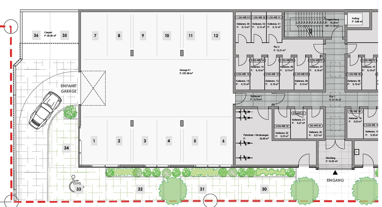
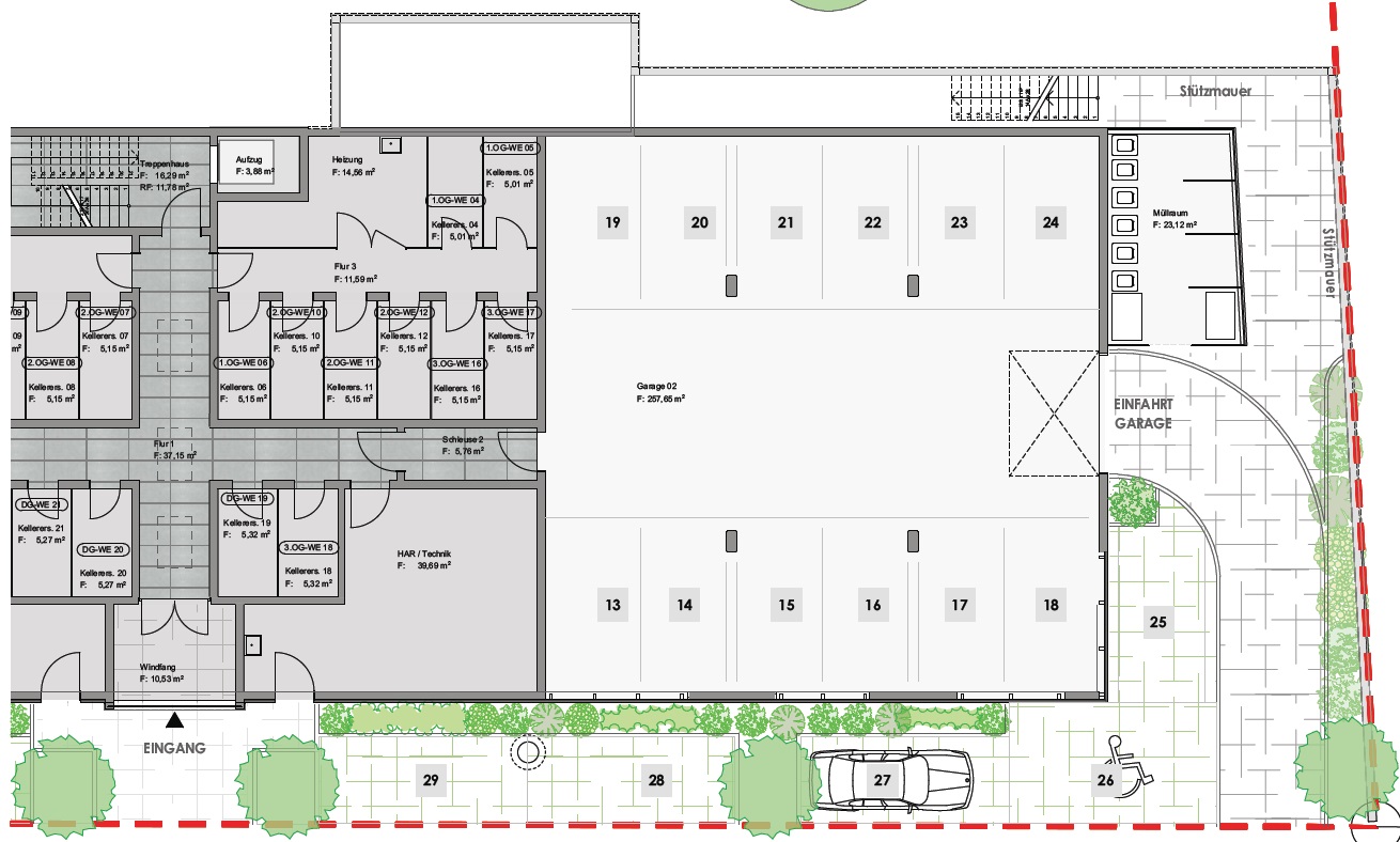
Dieses KfW 55 (153) Niedrigenergiehaus mit 22 Eigentumswohnungen, einem Aufzug bis zur Tiefgarage und Abstellräumen, entsteht in der Lichtenfelser Str., Burgkunstadt.
Alle fünf 3-Zimmer-Eigentumswohnungen bieten einen offenen Wohn-, Ess- und Kochbereich.
Zwei Schlafzimmer, eine Diele und ein Bad vervollständigen diese Wohneinheit. Vom Wohnbereich gelangen Sie auf den Balkon oder auf die Terrasse.
Für den Innenausbau aller Wohneinheiten stehen hochwertige Bodenbeläge wie Parkett oder Design-Vinylbodenbelag und Wandfliesen zur Auswahl.
Kellergeschoss
Im Kellergeschoss befindet sich eine Tiefgarage mit 24 Stellplätzen. Ebenfalls im Kellergeschoss finden sich 22 Kellerräume und ein Fahrradraum. Die Tiefgarage wird per Aufzug mit den Wohngeschossen verbunden. 10 weitere Außenstellplätze, u.a. behindertengerecht, befinden sich vor dem Haus.
Lage
Burgkunstadt ist eine Stadt im Obermainland im oberfränkischen Landkreis Lichtenfels (Bayern). Der Stadtkern der Stadt Burgkunstadt liegt etwa einen Kilometer nördlich des Mains, zwischen Lichtenfels und Kulmbach, Region Oberfranken-West. Durch die Schulen in Burgkunstadt, von Grundschule bis Realschule und Gymnasium, sowie zwei Kindergärten ist diese Stadt sehr attraktiv.
Mit der guten Verbindungsmöglichkeiten der B289 und der B303 sowie eigenem Bahnhof, sind die benachbarte Städte Kulmbach, Lichtenfels, Kronach, Bamberg, Coburg und Bayreuth gut zu erreichen
Ausstattung
Sonstiges
Förderungen bei KfW 55 Haus
Dieses Mehrfamilienhaus wird in grundsolider und energieeffizienter Massivbauweise errichtet. Das moderne Plankonzept, Technik und Materialien erfüllen höchste Ansprüche. Alle Außenwände werden mit Wärmedämmziegeln erstellt. Durch die Hochwertigkeit dieser Ziegel bedarf es keiner zusätzlichen Wärmedämmung. Als Heizungsanlage ist eine moderne energiesparende Luft/Wasser-Wärmepumpe mit Fußbodenheizung in allen Wohneinheiten vorhanden. Fenster und Fenstertüren aus Kunststoff als Fünfkammerprofil, zwei Dichtungen und Dreifach- Isolierverglasung mit U-Wert 0,6 W/m² K.
Aufgrund dieser Bauweise, nach KfW 55, sind folgende Förderungen möglich:
KfW Darlehen mit 120.000,-€ / Wohneinheit mit 0,75 Zinssatz von KfW und max. 18.000 Euro (entspricht 15% des Darlehens) Tilgungszuschuss*.
BAFA 30% auf Wärmepumpe, Anteilig der Wohnfläche*.
KfW Zuschuss von 50% auf energetische Fachplanung und Baubegleitung (431)*.
Bayerische Eigenheimzulage 10.000,00€/Wohneinheit (nur noch 2020)*.
Baukindergeld je Kind 12.000,00 € (1.200,00€/Kind/Jahr)*.
Bayerische Baukindergeld je Kind 3.000,00€ (1.200,00€/Kind/Jahr)*.
*unter bestimmten Voraussetzungen bis zu 35.000,- Euro Förderungen möglich.
Anfrageformular
Weitere Bilder



















